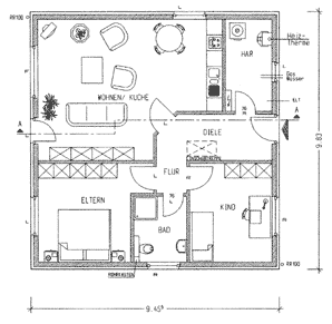
Grundtyp ca. 78 qm Wohnfläche

nur EUR 68.490,-*
Bauzeitgarantie 3 Monate

Haus A01A