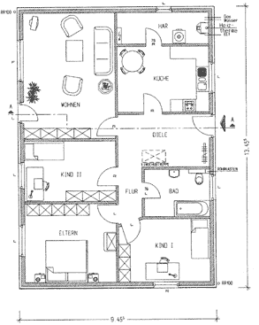
Grundtyp ca. 108 qm Wohnfläche

nur EUR 82.490,-*
Bauzeitgarantie 3 Monate

Haus A02