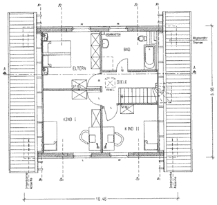
Grundtyp ca. 122 qm Wohnfläche

ab EUR 112.990,- inkl. Fpl.
inkl. Keller
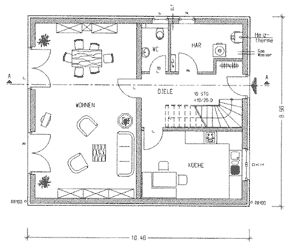
ab EUR 143.640,-

Bauhaus Atelier Ideal S 1